Все статьи
Перепланировка

Перепланировка и переустройство жилого помещения

Автор: Эксперт20 января 2024 г.7 мин чтения

В данном разделе представлены реальные примеры перепланировок, по которым проводилась строительно-техническая экспертиза. Рассмотрены случаи присоединения общедомового имущества, объединения квартир и изменения конфигурации помещений.

1

Присоединение коридора общего пользования

Ситуация

Произошло увеличение общей площади квартиры за счет присоединения коридора общего пользования. Коридор примыкает к квартире так, что его использование другими жильцами невозможно. Для семьи истца коридор служит подсобным помещением.

Результаты экспертизы

  • • Нарушений пожарной безопасности не выявлено.
  • • Соответствует СанПиН 2.1.2.2645-10.
  • • Перегородка не несет нагрузки, кроме собственного веса.
  • • Препятствий при эвакуации не создает.

⚖️ Решение суда

Исковые требования удовлетворить. Сохранить жилое помещение в перепланированном состоянии. Перепланировка соответствует нормам и не нарушает права граждан.

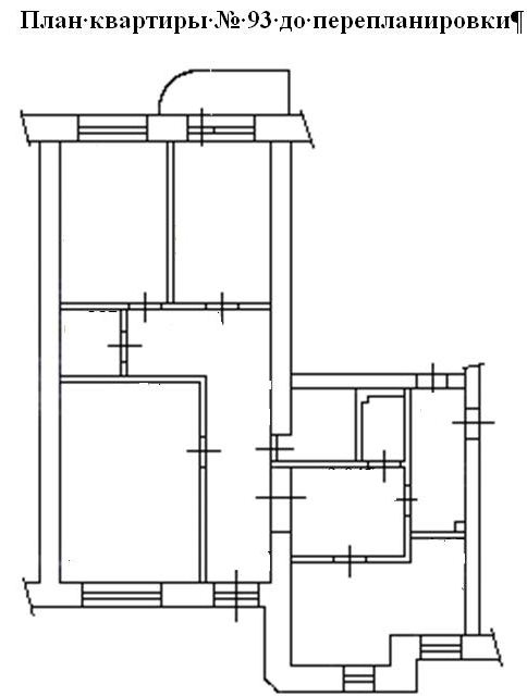
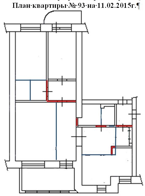
2

Разделение комнаты и перепланировка санузла

План квартиры до перепланировки План квартиры после перепланировки

Объект

Комната 32.8 кв.м. разделена на две. Жилая площадь увеличена за счет коридора. Уменьшена площадь санузла за счет встроенного шкафа.

Заключение

Перегородка из ГКЛ является легкой конструкцией. Нарушений целостности здания нет. Соответствует санитарным нормам.

⚖️ Решение суда

Исковые требования удовлетворить. Сохранить жилое помещение в перепланированном состоянии, так как работы выполнены без нарушений и угрозы жизни.

3

Пристройка и переустройство (частный сектор)

План дома до реконструкции План дома после реконструкции

Ситуация: Самовольная перепланировка: снесены кухня и веранда, возведены новые помещения (кухня, веранда, прихожая, туалет). Увеличена площадь застройки. Работы выполнены без разрешения.

Важно: Согласно ст. 222 ГК РФ право собственности на самовольную постройку может быть признано судом, если участок находится в собственности/пользовании и постройка безопасна.

⚖️ Решение суда

Сохранить жилое помещение в переустроенном состоянии. Экспертиза подтвердила соответствие СНиП и СанПиН, отсутствие угрозы обрушения и нарушения прав соседей.

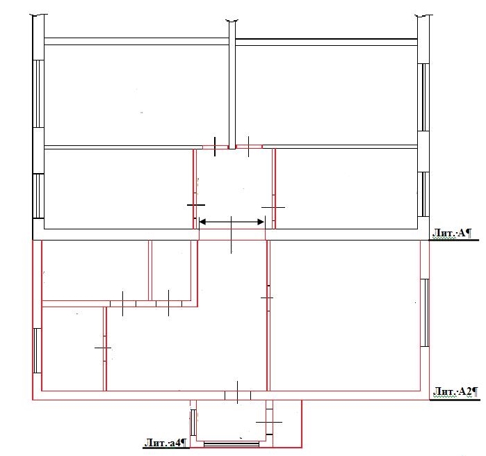
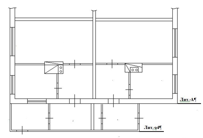
4

Объединение двух квартир

План объединения квартир План после объединения

Ситуация: Объединение коридоров, демонтаж перегородок, перенос дверных проемов, демонтаж печей, строительство пристройки. Работы выполнены самостоятельно.

Выводы эксперта

Перепланировка не затрагивает несущие стены. Инженерные системы (газ, вода, свет) функционируют исправно. Деформаций и трещин нет. Помещение пригодно для проживания.

⚖️ Решение суда

Сохранить жилое помещение, образованное путем объединения квартир, в переустроенном состоянии.

Другие примеры из практики

Монтаж и демонтаж ненесущих стен-перегородок (ул. 20 Партсъезда)

Пример перепланировки 1 Пример перепланировки 2

Увеличение кухни, совмещение санузла (ул. 17 Военный городок)

Пример перепланировки 3 Пример перепланировки 4

Планируете перепланировку или уже сделали?

Мы поможем узаконить изменения, проведем необходимую экспертизу и подготовим заключение для суда или администрации.

Получить консультацию

Нужна помощь эксперта?

Свяжитесь с нами для бесплатной консультации